Our Senior Living Floor Plans

Our Senior Living Floor Plans
Welcome to your new beginning! At Porters Neck Village, our floor plans for senior living offer the perfect blend of luxury, comfort, and coastal charm. Whether you’re looking for a one-bedroom apartment or a spacious villa, you’ll find the perfect residence waiting for you in our beautiful Wilmington retirement community.
Our newest expansion brings many more stunning homes to our vibrant neighborhood. Each thoughtfully designed space features modern finishes, open layouts, and plenty of natural light. If you’re ready to find your perfect fit, contact us today and explore the options that await you at Porters Neck Village!


Independent Living
Floor Plans
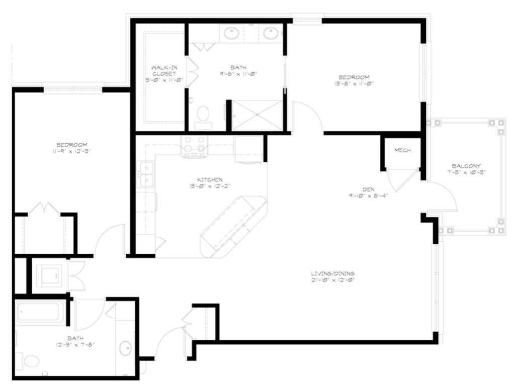
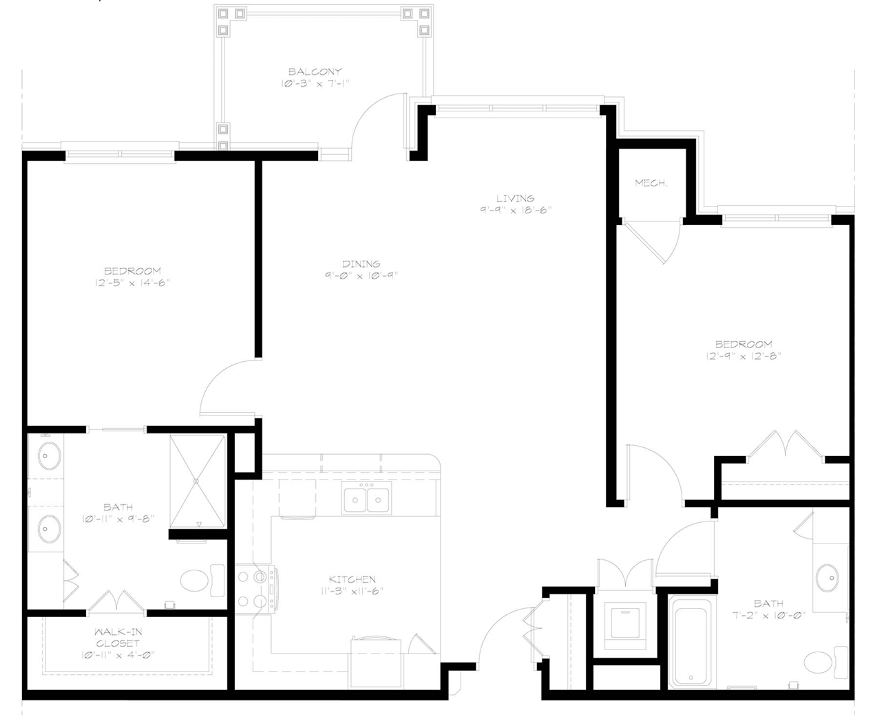
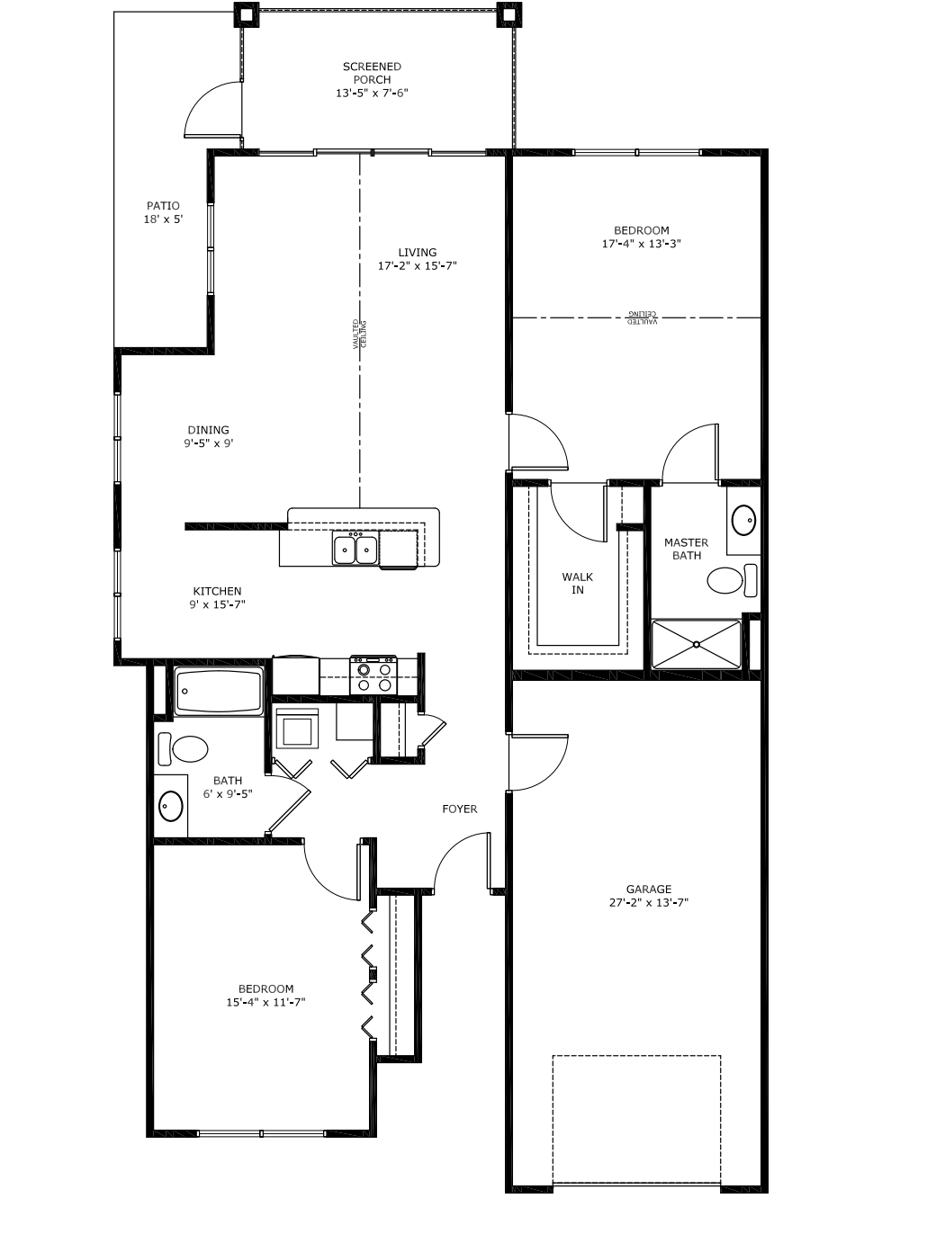
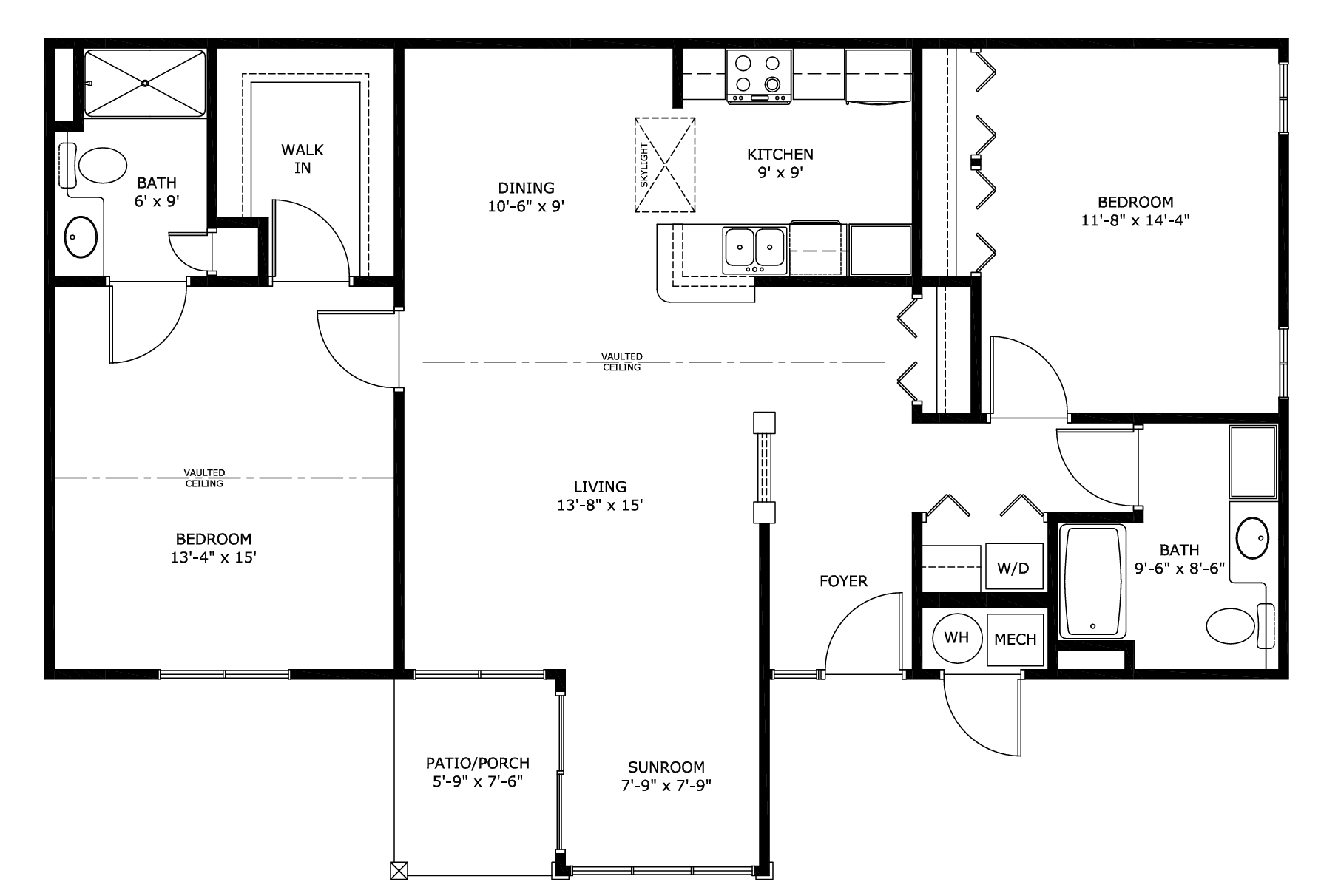
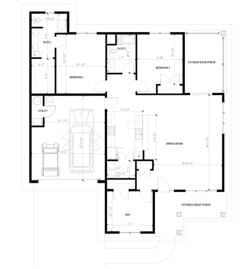
We offer various living spaces to fit your needs, tastes, and budget. Choose from duplex homes, traditional one-bedroom senior apartment floor plans, and other options.
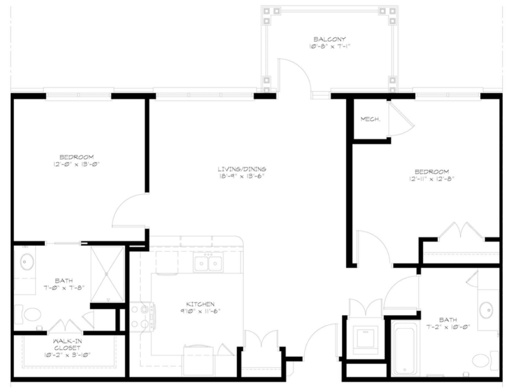
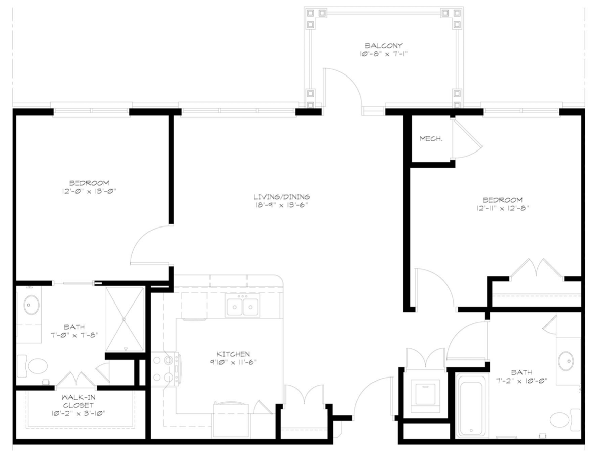
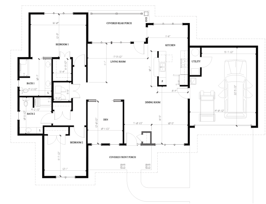
In phase 2 of our community’s expansion, we’re adding 67 independent living residences! These new one and two-bedroom floor plans include both apartments and villas. Between these upcoming additions and our original array of options, you’re sure to find your ideal space! Once you do, you could be living like a Village Person sooner than you think.
Affordable prices on our 50% Refundable Entrance Fee plan start at:
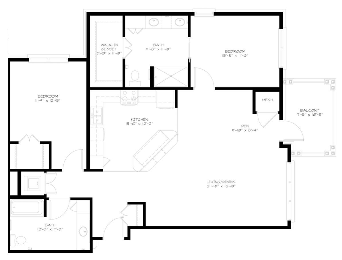
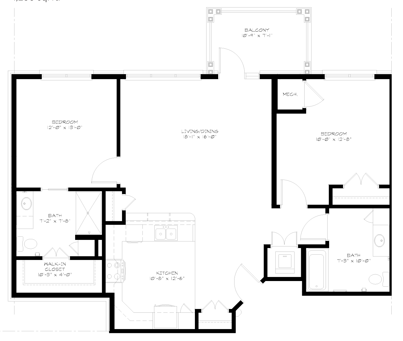
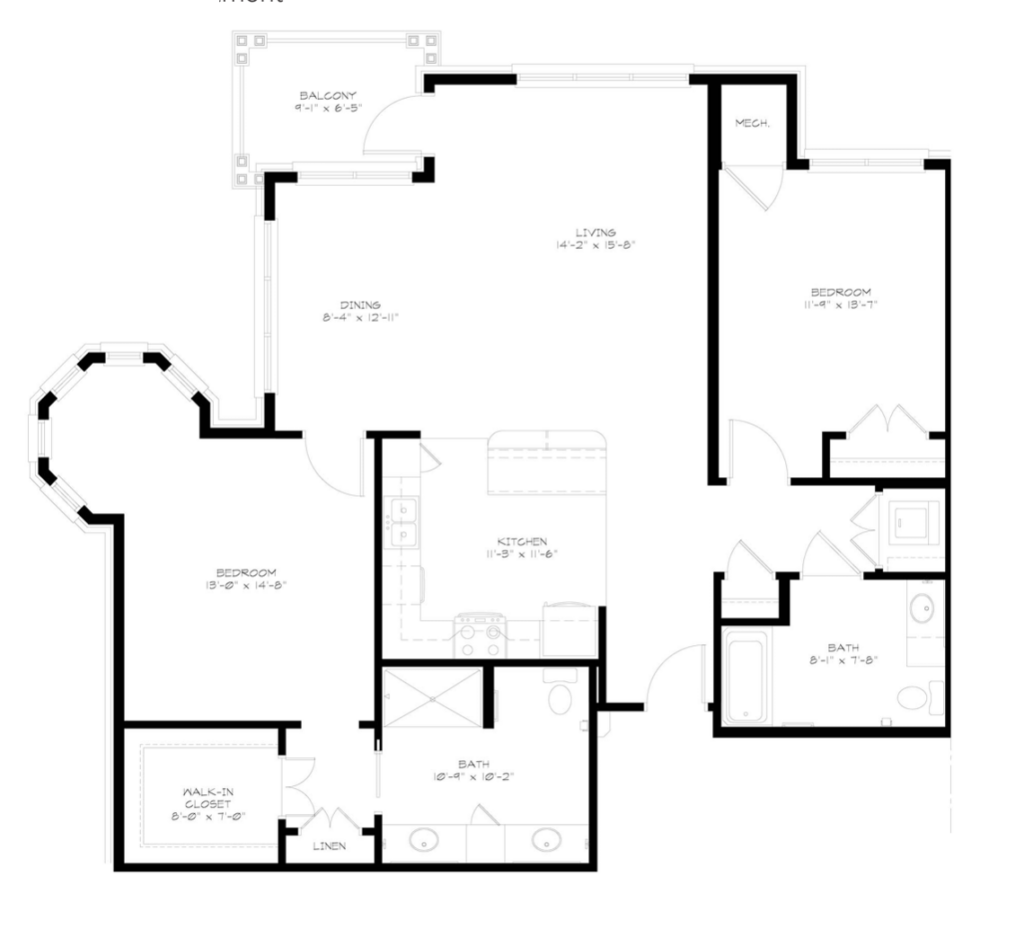
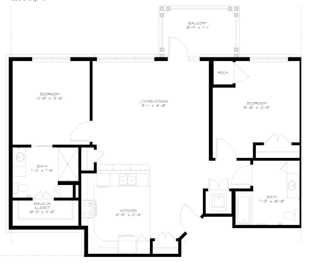
Apartments:
- $151,500 with monthly fees beginning at $4,064 for a One-Bedroom Apartment
- $205,000 with monthly fees beginning at $4,844 for a Two-Bedroom Apartment
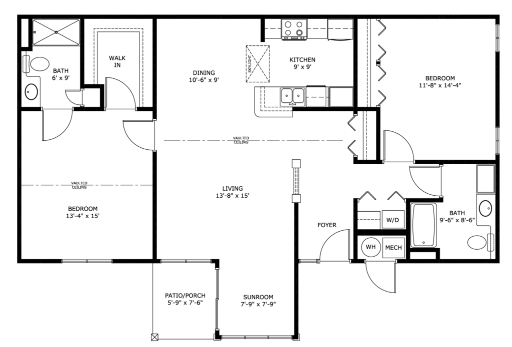
New Phase Two Apartments:
- $286,650 with monthly fees beginning at $3,729 for a One-Bedroom Apartment
- $462,400 with monthly fees beginning at $4,531 for a Two-Bedroom Apartment
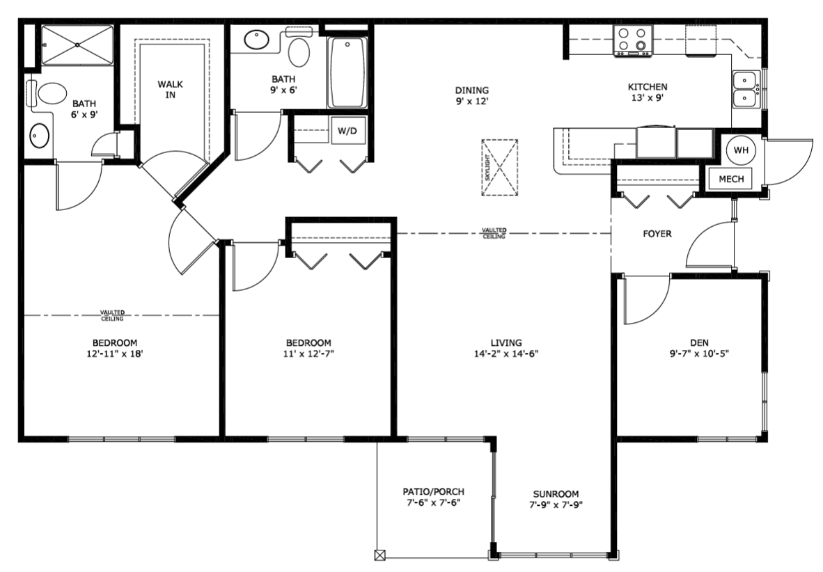
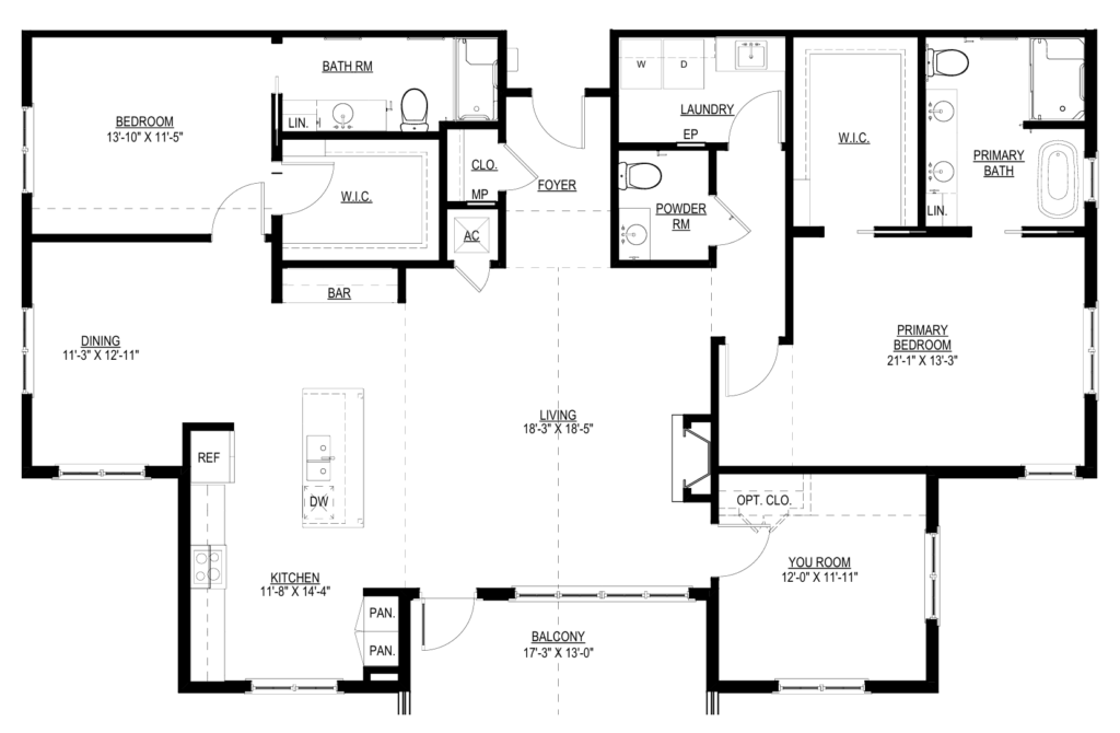
Flats:
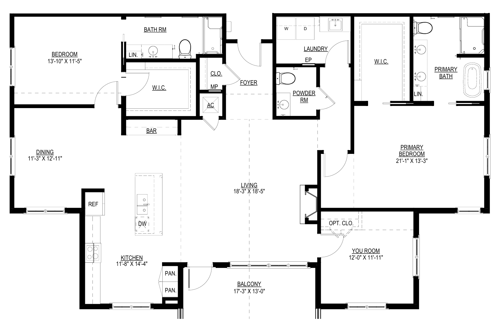
- $442,000 with monthly fees beginning at $5,368 for a Two-Bedroom, Two-Bath Flat with a bonus “YOU” Room
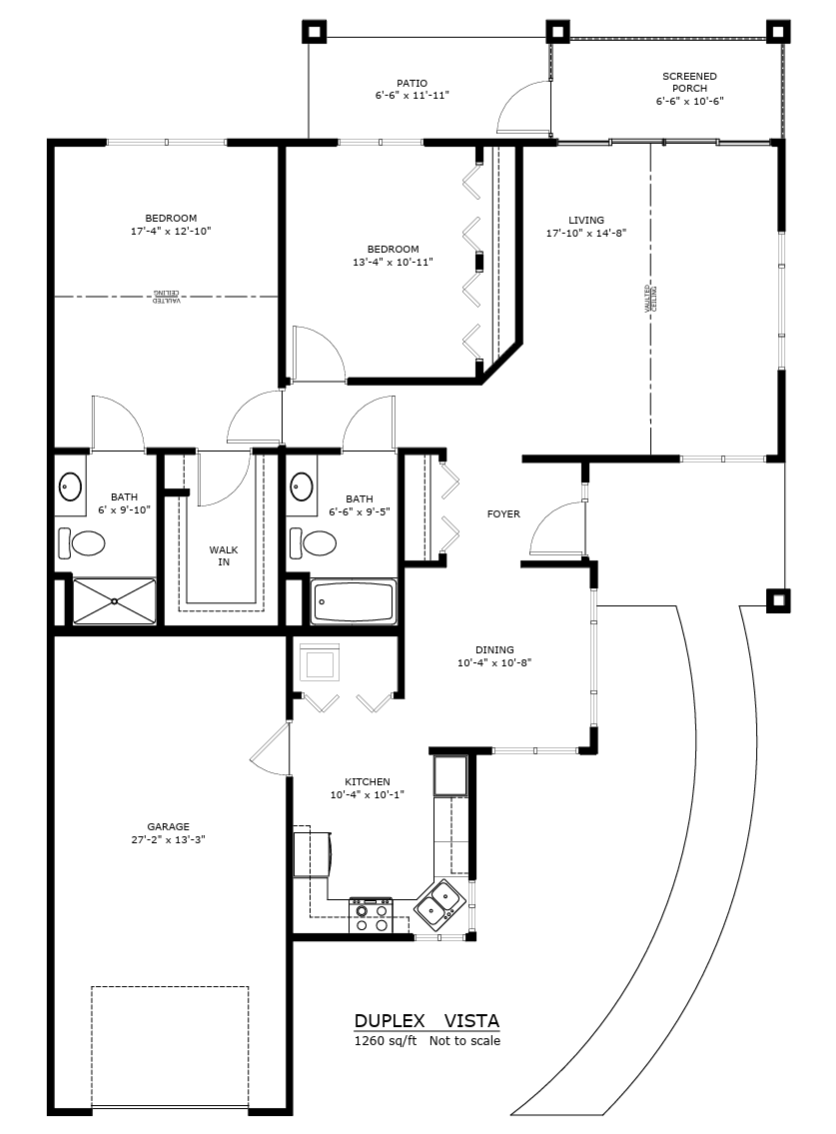
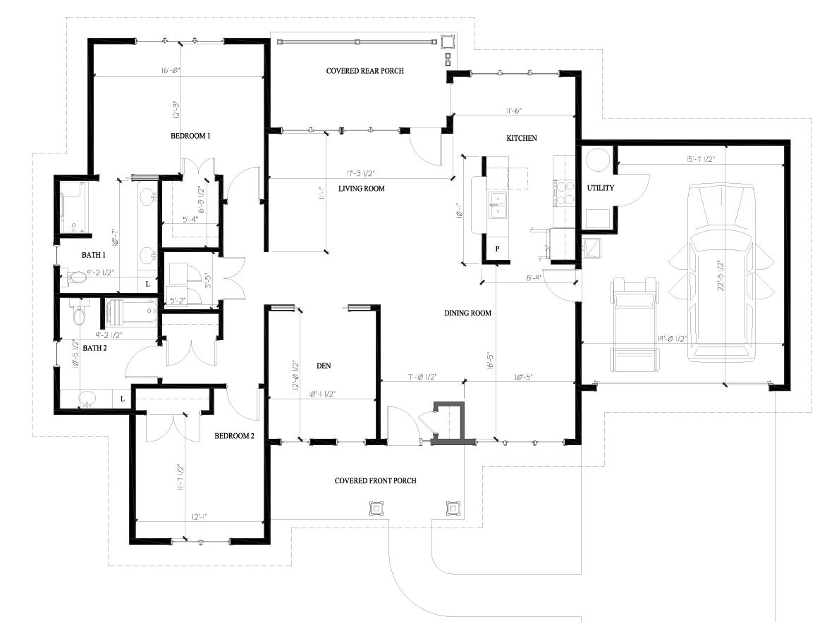
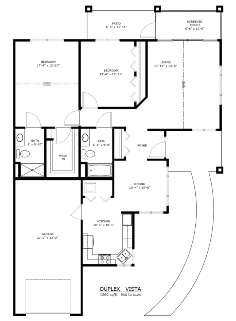
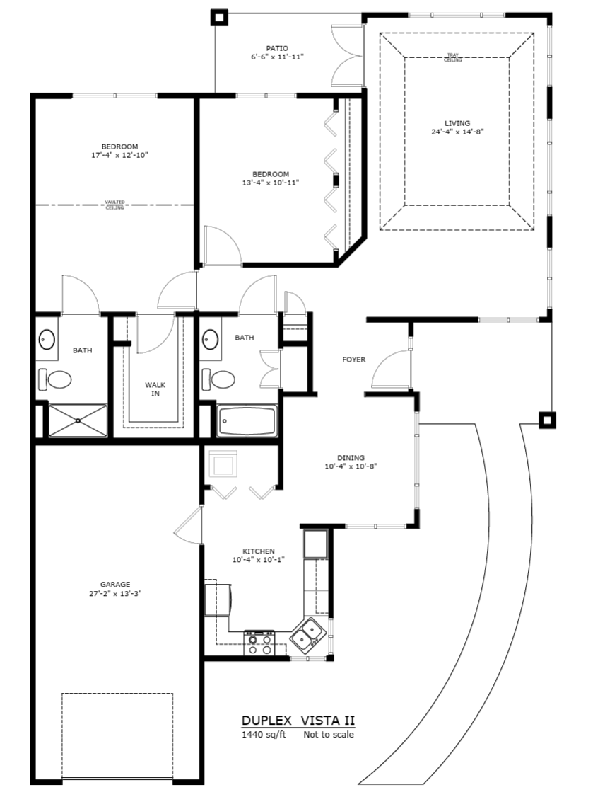
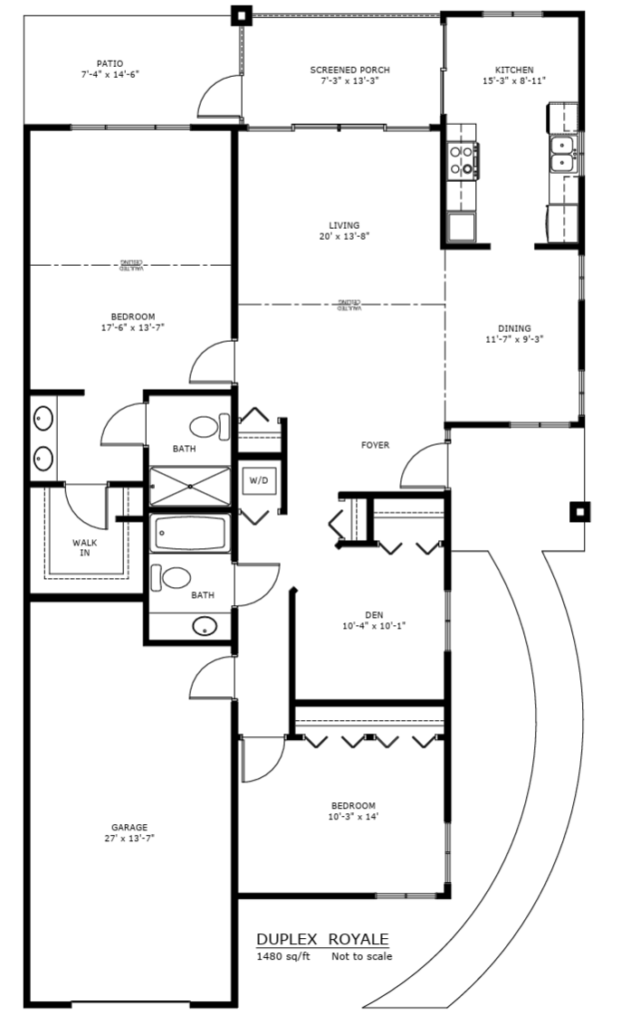
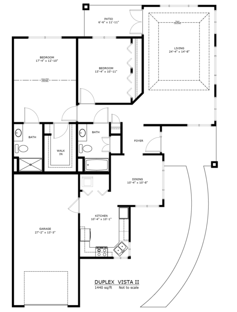
Duplex Homes:
- $491,500 with monthly fees beginning at $6,849 for a Two-Bedroom, Two-Bath Duplex Home with a bonus “YOU” Room

Available Amenities
We have homes with balconies or patios, and residences that feature spacious living rooms, bedrooms, and private dens. Whatever you’re looking for, we have many options to choose from that will help make your retirement exactly what you dream it to be.
Some available amenities in our different apartment and house plans include:
- Natural lighting
- Open concepts
- Wood flooring
- Modern appliances and lighting fixtures
- Spacious bathrooms
- Walk-in showers
- Private outdoor areas
- Washer and dryer
- Ample closet space and storage
- Granite countertops
- Ceiling fans
- Covered parking
- Security features
At Porters Neck Village, you get to enjoy being part of an active, welcoming community and luxury living. From open floor plans to elegant bathrooms, our residences are designed with comfort and convenience in mind. Once you choose yours, you can customize your dream den, library, art studio, guest room, and more! We want residents to feel at home by making their new space truly theirs.
New Construction Floor Plans
Apartments
Village
Village Flats
Duplexes

Your Coastal Oasis Awaits
Picture yourself enjoying a maintenance-free lifestyle in North Carolina and welcoming friends into your beautiful new home. At Porters Neck Village, our idyllic coastal oasis offers more than just a place to live— it’s a vibrant community where you can thrive.
Say goodbye to tedious home upkeep. Our senior living residences give you the freedom to make the most of every day. Join our community of “Village People” who embrace independence while enjoying all the luxuries our spectacular community has to offer.
Ready to start your next chapter at Porters Neck Village? Call (910) 686-7181 today to schedule a personal tour of our neighborhood and floor plans and see which one feels like home!
